362 fm Einingahús Motel

Teikningar & Skýringar 

Þessi teikning er sérhönnuð af arkitekt okkar. Það eru til margar útgáfur af þessu glæsilega húsi. Sérinngangur er í hvert herbergi. Sérútgangur er úr hverju herbergi.

Heitir pottar eru beggja megin. Hægt er að breyta herbergjum í 2 ja manna herbergi, ásamt baðherbergi.


  •       GRUNNMYND      
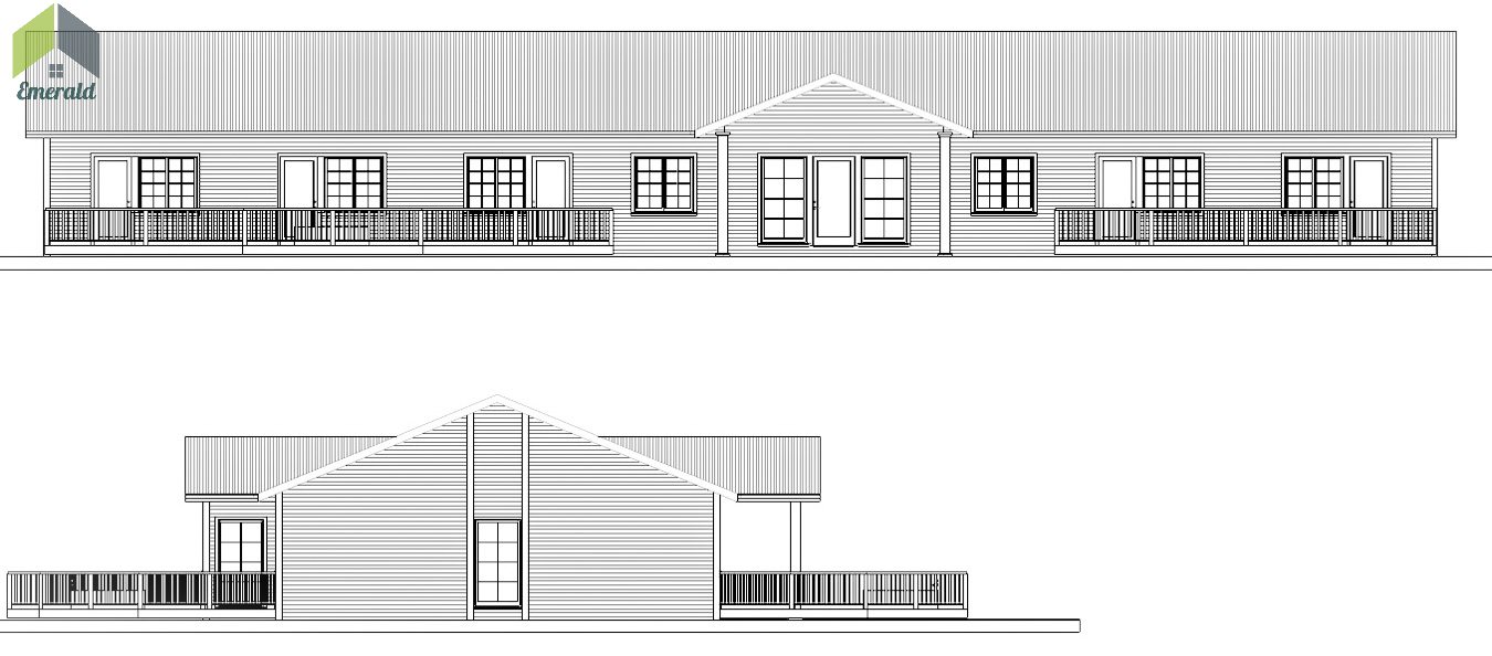
  •      ÚTLIT      
  •      LÝSING      
  •      VERР     
      GRUNNMYND      

Emerald Hotel Motel 361

Grunnmyndin hér að ofan er 362 fm útfærsla af Gistihúsi

362 FM EININGAHÚS MÓTEL

Mótelið er hægt að fá í mörgum mismunandi útgáfum. Allt að 600 fm með veitingasal og auknu gistirými.

HEILDARSTÆRÐ: 361 FM


BÍLSKÚR: 0 FM



SVEFNHERBERGI: 10


STÆKKANLEGT: JÁ

     ÚTLIT      

Emerald Hotel Motel 361
Emerald Hotel Motel 361
Emerald Hotel Motel 361
     LÝSING      

Innifalið í grunnverði hússins

  • Framleiðsluteikningar frá verksmiðju
  • Verksmiðjuframleiddir útveggir með lektum og rakavörn að innanverðu og utanverðu
  • Steinullareinangrun komin í útveggi
  • Utanhússklæðning formáluð Fíbersement 10-12 mm
  • Allt gifs á innanverða útveggi ásamt 12mm OSB undir gifsi
  • PVC Gluggar með tvöföldu gleri koma ísettir í einingar
  • Innveggir verksmiðjuframleiddir ásamt steinullareinangrun
  • Allt gifs á innveggi ásamt 12mm osb undir gifs
  • Þaksperrur/kraftsperrur
  • Lektur í loftin (þak) undir gifs (raflagnabil) 
  • Rakavörn
  • Gifs í loftin, eða annað efni skv vali
  • Steinullareinangrun í þak 250 mm
  • Þakklæðning 18-22mm ofan á sperrur/kraftsperrur
  • Icopal Balbit þakdúkur ofan á OSB
  • Útihurðir PVC eða viðarhurðir og rennihurðir úti
  • Festingar og vinklar við sökkul og vinklar á sperrur
  • Skrúfur og festingar
  • Flutningsgjöld til landsins og á byggingarstað
  • Tollar og gjöld
  • Flutningstryggingar
     VERР     

362 fm 10 herb Mótel

Húsið er framleitt í einingum. Gifsklætt að innan. Fíbersementsklæðning að utan. Veggir eru hljóðeinangrandi.

Verð frá 54,7 millj. *

Verð miðast við afhendingu á byggingastað með tollum og gjöldum, en án uppsetningar.

VERÐ Í JANÚAR 2025

Uppsetning kr 9-11 millj. eftir útfærslu og að menn frá verksmiðju setji húsið upp