116 + 50 FM EININGAHÚS

Teikningar & Skýringar 

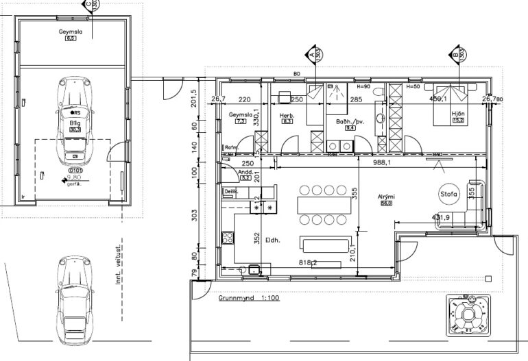
Þessi teikning er 116 fm húsinu.

Bílskúr er stakur og er um 50 fm. Hægt er að breyta bílskúr í gestahús. Einnig er hægt að gera almennar breytingar á teikningunni sjálfri.


  •       GRUNNMYND      
  •      ÚTLIT      
  •      LÝSING      
  •      VERР     
      GRUNNMYND      

116 FM EININGAHÚS + 50 FM BÍLSKÚR

Þetta tiltekna hús rís nú í nóvember 2020 í Kotabyggð, Akureyri (Vaðlabyggð)

HEILDARSTÆRÐ: 166 FM


BÍLSKÚR: 50 FM


SVEFNHERBERGI: 2


BREYTANLEGT: JÁ

     ÚTLIT      

     LÝSING      

Innifalið í grunnverði hússins

  • Framleiðsluteikningar frá verksmiðju
  • Verksmiðjuframleiddir útveggir með lektum og rakavörn að innanverðu og utanverðu
  • Steinullareinangrun komin í útveggi
  • Utanhússklæðning formáluð Fíbersement 10-12 mm
  • Allt gifs á innanverða útveggi ásamt 12mm OSB undir gifsi
  • PVC Gluggar með tvöföldu gleri koma ísettir í einingar
  • Innveggir verksmiðjuframleiddir ásamt steinullareinangrun
  • Allt gifs á innveggi ásamt 12mm osb undir gifs
  • Þaksperrur/kraftsperrur
  • Lektur í loftin (þak) undir gifs (raflagnabil) 
  • Rakavörn
  • Gifs í loftin, eða annað efni skv vali
  • Steinullareinangrun í þak 250 mm
  • Þakklæðning 18-22mm ofan á sperrur/kraftsperrur
  • Icopal Balbit 2 faldur bræddur þakdúkur ofan á OSB
  • Útihurðir PVC eða viðarhurðir og rennihurðir úti
  • Festingar og vinklar við sökkul og vinklar á sperrur
  • Skrúfur og festingar
  • Flutningsgjöld til landsins og á byggingarstað
  • Tollar og gjöld
  • Flutningstryggingar
     VERР     

116 fm húsið verð kr 19,5 millj.

50 fm bílskúr verð kr 8,2 millj.

Verð alls kr 27,7 millj. *

komið á byggingarstað *

Verð í maí 2023 án uppsetningar